Hadbjerg Skole


 

        Tegninger fra den nye indskolingafdeling 2002

 

        Indskolingsafdelingen set fra siden

 

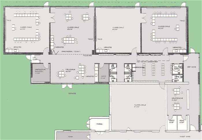
        Indskolingsafdelingen set ovenfra

       Tilbage